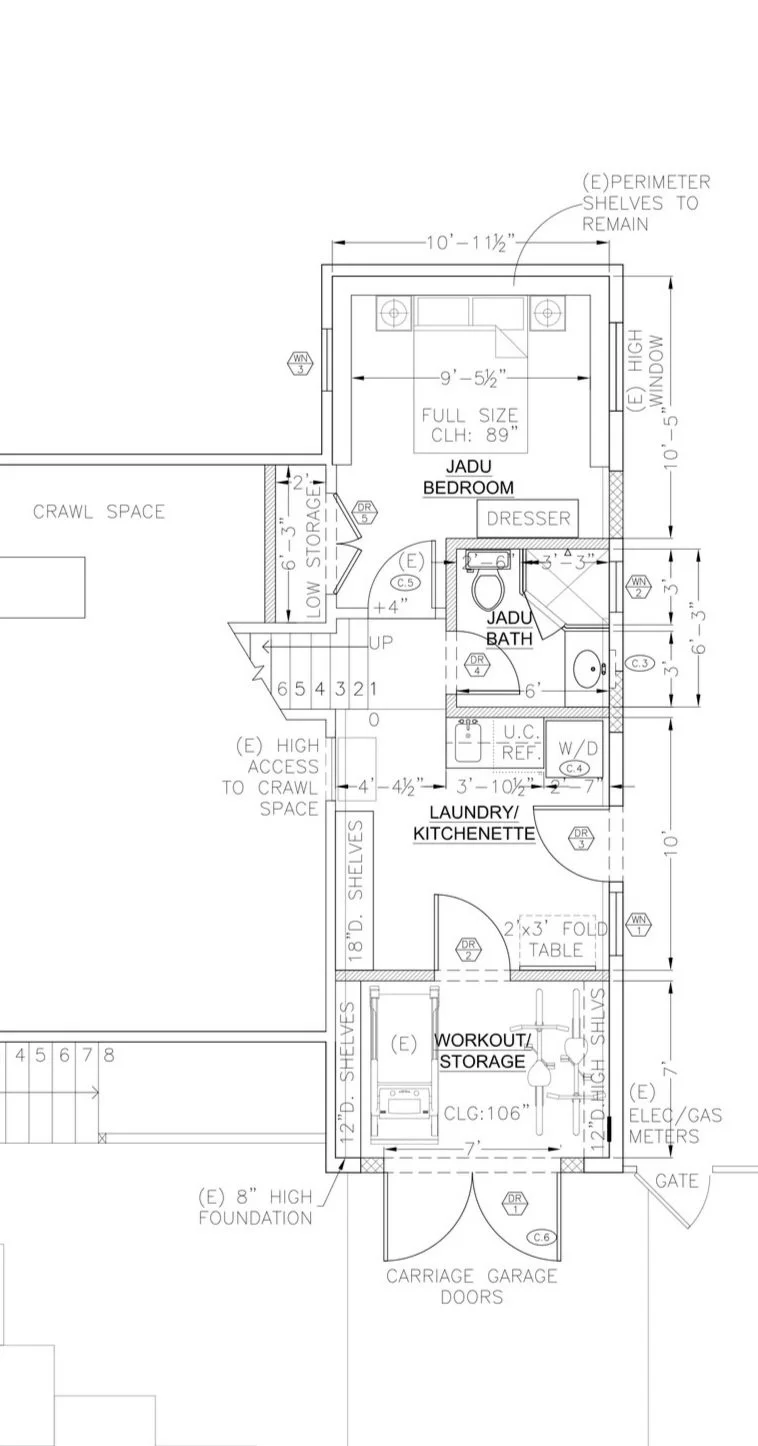
Basement ADU Conversion
My involvement with this project included measuring the existing basement space, inputting measurements into AutoCAD, come up with three design iterations for the clients, work with clients to create their ideal plan based off of suggested schemes, and complete the construction and demolition plan, shown below.

